Park
Residence
Цени и площи
Начало
Виж Сграда 1
Виж Сграда 2
Цени и площи
За проекта
Контакт
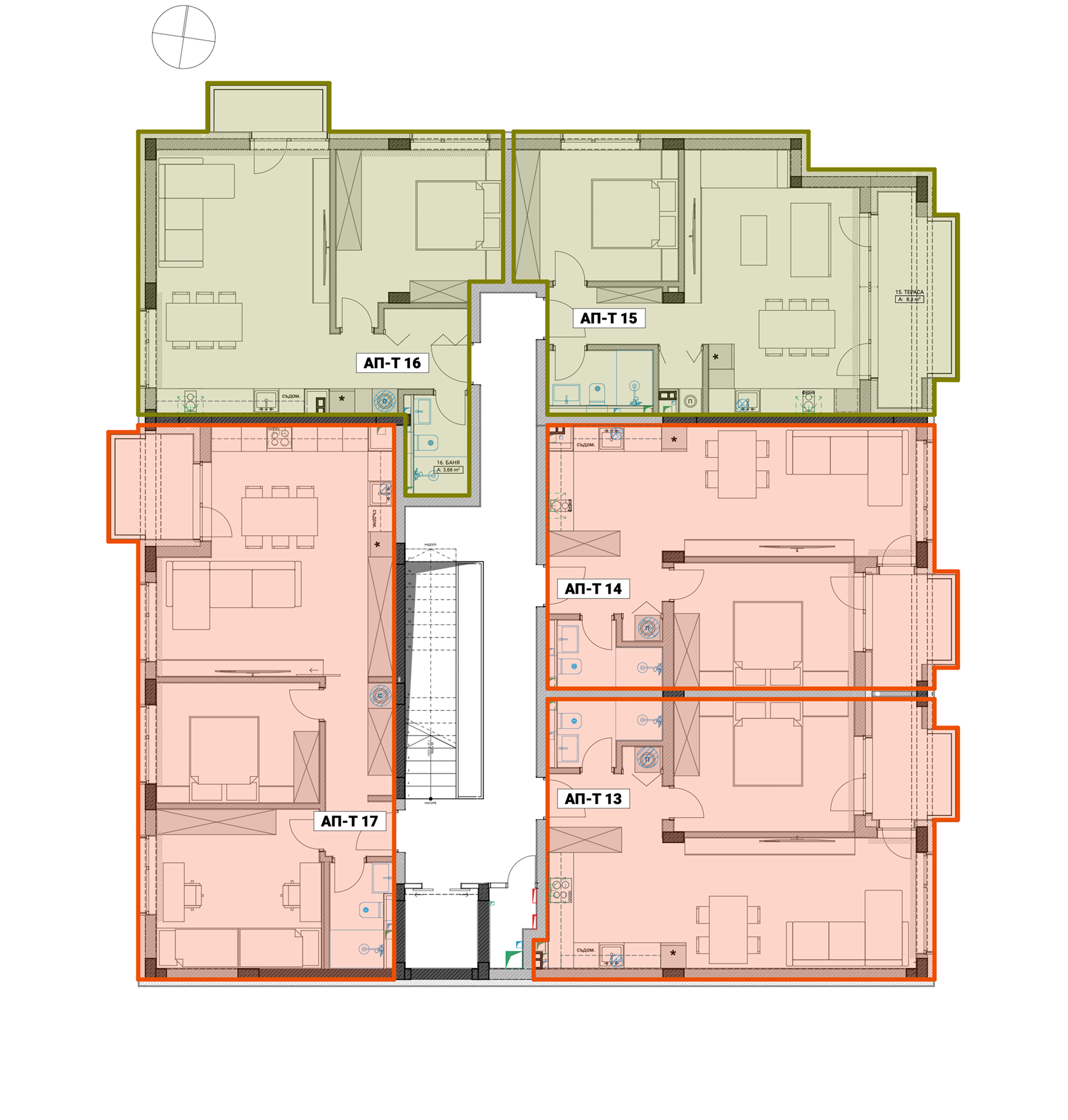
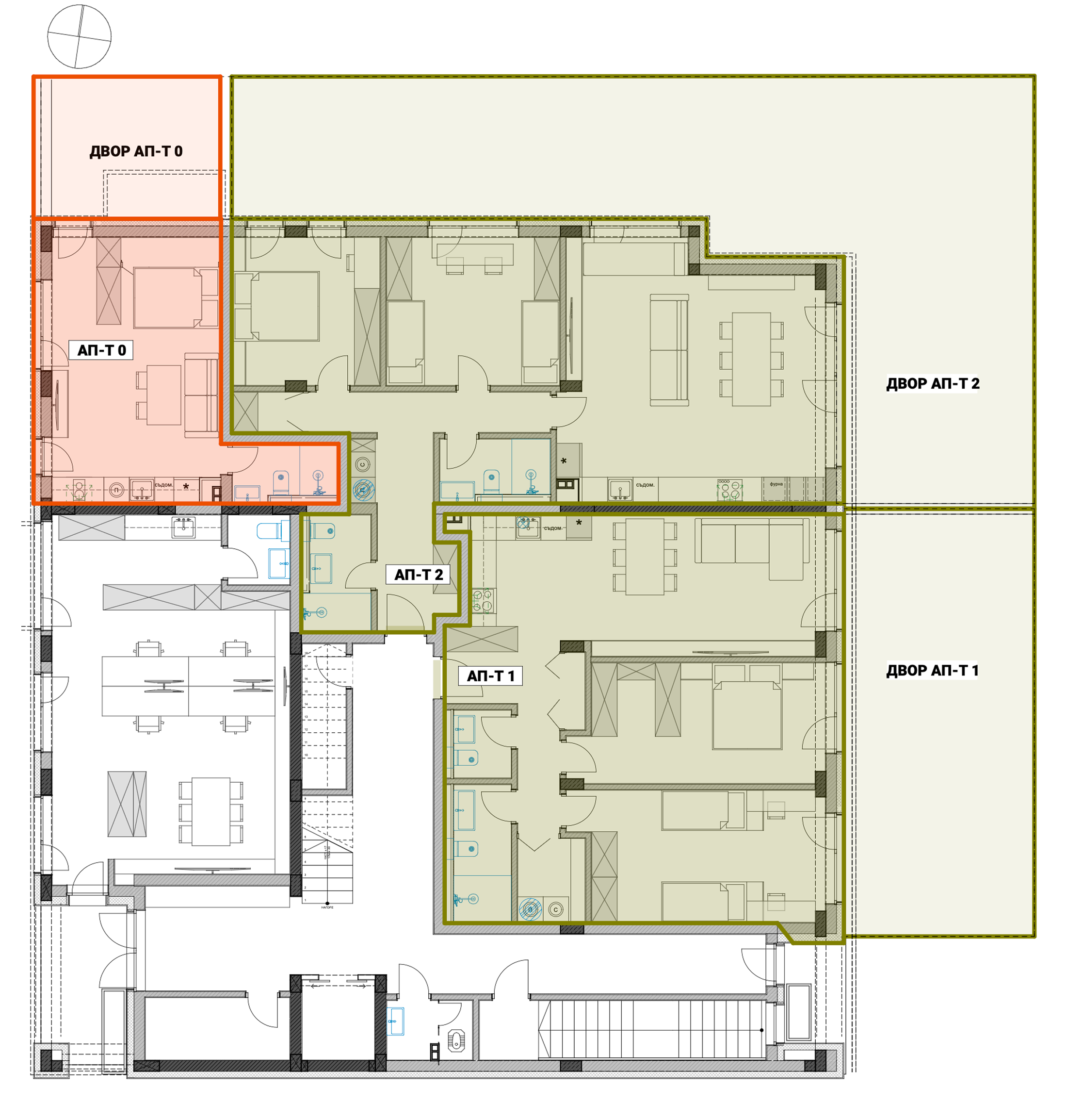
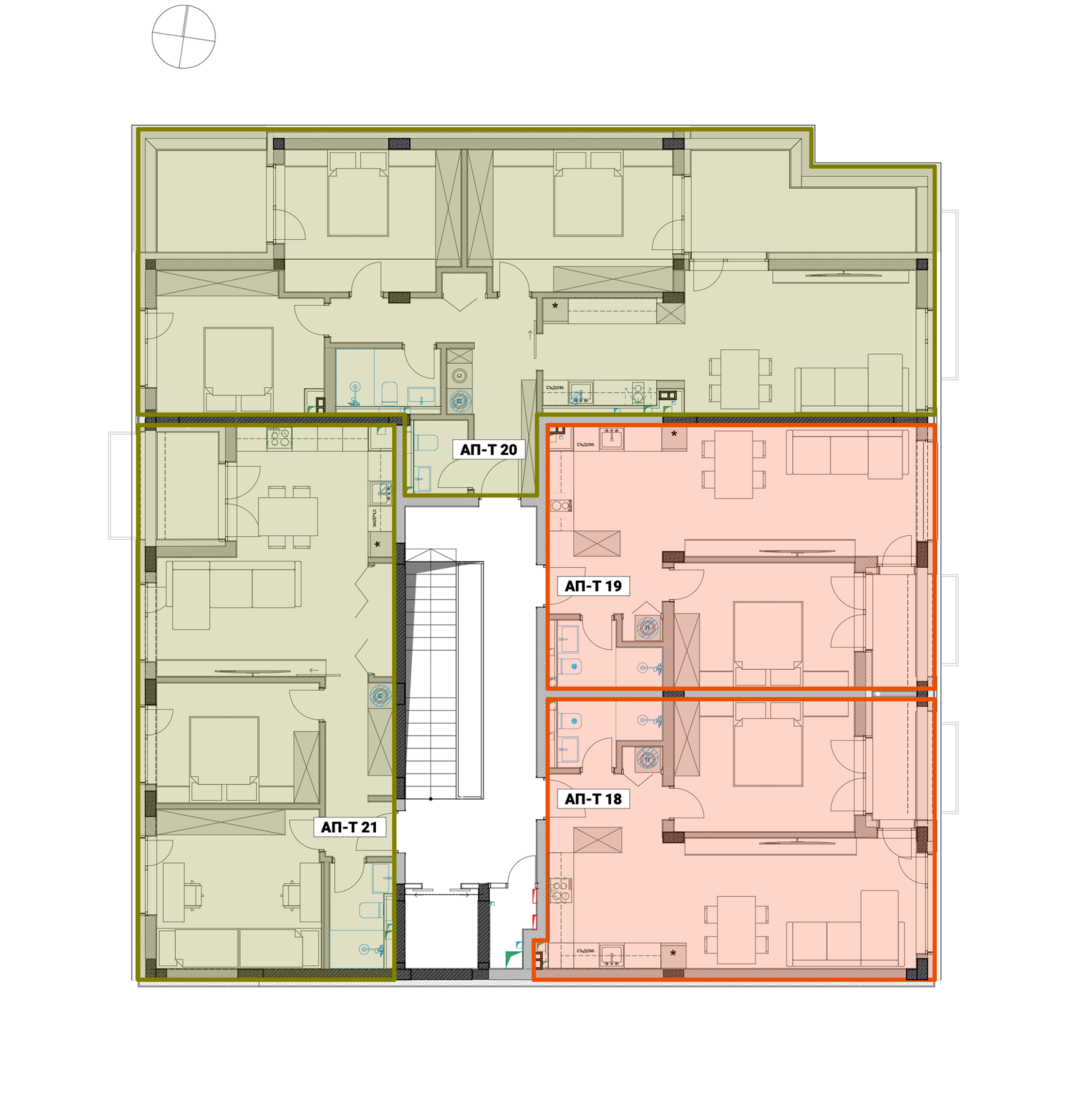
Разпределения сграда 2
PS Park Residence 2 се състои от сутерен с гаражи, 5 жилищни етажа, външни паркоместа и двор.
Етаж 1
Етаж
2
Етаж
3
Етаж
4
Етаж
5
сутерен
Етаж 1
Етаж 2
Етаж 3
Етаж 4
Етаж 5
Сутерен
Виж Цени и Площи
УСЛОВЯ И НАЧИНИ НА ПЛАЩАНЕ
Pезервирай имот само срещу 3000 евро.
Стандартен План
Кредитен План
Инвестиционен План
СвържИ се с нас.
Моля, попълнете формуляра, за да получите актуална информация за проекта.
Имейл *
Телефон за връзка
Съобщение
Благодарим Ви за запитването. Ще се свържем с Вас в срок от 3 работни дни.
Моля попълнете всички задължителни полета.